干油润滑部分
单线式集中润滑系统介绍
双线式集中润滑系统介绍
电动润滑泵
 
手(脚)动润滑泵
 
加油泵
 
气动泵
 
双线分配器
 
单线分配器
 
压力操纵、控制、换向阀及其附件
 
 稀油润滑部分
稀油集中润滑系统设计介绍
稀油润滑装置及稀油站
 
高(低)压稀油站
 
挡轮液压站
 
稀油润滑元件
 
 管件部分
 
 油气润滑部分
油气润滑系统设计介绍
油气润滑系统的形式
 
油气润滑系统产品
 
 电气控制部分
 

产品介绍

 
SJB-V25型手动加油泵(3.15MPa)JB/T8811.2-1997

一、概述
该泵适用于向31.5MPa压力级的手动润滑泵或40MPa压力级的小型电动润滑泵贮油器内加注润滑剂。因该泵具有出油过滤,油位显示及操作方便等特点,特别适用于向贮油器补给口无过滤装置的润滑泵加注润滑脂。

二、技术参数

型号
公称压力MPa
给油量mL/循环
最大手柄力N
贮油桶容积L
重量kg
SJB-V25
3.15
25
≤160
20
18.3
使用介质为锥入度不低于220(25℃,150g)1/10mm 的润滑脂和粘度等级大于N46 的润滑油。
   
三、型号说明               


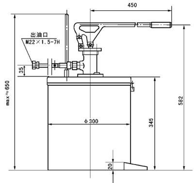
四、外形尺寸

五、工作原理
操作手柄向上运动时,活塞上腔容积逐渐变小,把润滑剂沿输送胶管送到贮油器里,活塞下部逐渐变大,形成负压,管帽内的单向阀打开,把油桶内的润滑剂吸入。当手柄向下运动时,活塞上腔形成负压,下部单向阀关闭,吸入的润滑剂不能返回油桶,此时活塞上部单向阀打开,润滑剂进入活塞上腔。当手柄再次向上运动时,重复上述过程。


六、使用说明
1、使用时输油胶管一端接加油泵出口,另一端接贮油器补给口,使用完毕后另一端应拧在桶盖螺栓上。
2、应定期清洗过滤网
3、油标在下位时桶内应及时加脂,以免无脂吸入空气混入贮油器内。


苏ICP备08000188号Copyright© 2017启东市凯润液压润滑设备有限公司