干油润滑部分
单线式集中润滑系统介绍
双线式集中润滑系统介绍
电动润滑泵
 
手(脚)动润滑泵
 
加油泵
 
气动泵
 
双线分配器
 
单线分配器
 
压力操纵、控制、换向阀及其附件
 
 稀油润滑部分
稀油集中润滑系统设计介绍
稀油润滑装置及稀油站
 
高(低)压稀油站
 
挡轮液压站
 
稀油润滑元件
 
 管件部分
 
 油气润滑部分
油气润滑系统设计介绍
油气润滑系统的形式
 
油气润滑系统产品
 
 电气控制部分
 

产品介绍

 

EM型电动换向阀(40MPa)

一、使用条件
EM型电动换向阀适用于公称压力为40MPa的干油集中润滑系统中,将润滑泵单线出口的压力润滑脂交替地通过主管道Ⅰ或Ⅱ送出去,组成一个完整的双线终端式干油集中润滑系统.
该换向阀是采用微型交流电机驱动,通过减速传动带动偏心连杆机构操纵滑芯移动,以开闭供油管道或转换供油方向的一种集成化的换向控制装置;它反应灵敏,启闭快速、动作可靠,可与电控箱配合使用对润滑系统进行自动控制。


二、技术参数

型号
公称压力Mpa
电机功率W
适用电源
EM
40
0.18
3-80V 50Hz

使用介质为锥入度不低于220(25℃,150g)1/10mm的润滑脂(NLGI0#-3#)。

三、 工作原理
EM型电动换向阀主要由电动机,减速机构,偏心连杆机构,强簧机构,二位四通阀,限位开关,压力表等组成。
电动机经蜗轮蜗杆减速后,由偏心轮2带动连杆3 作直线往复运动。由于连杆末端所连动的弹簧机构4的作用,使二位四通阀5中的滑芯杆6产生急速的推拉动作,从而改变二位四通阀各油口的联接方式,达到液流换向的目的。此时,偏心轮旋转了180°到达另一个死点位置,触动了限位开关7。限位开关即可送出脉冲信号,停止阀电机运行,完成了一个工作过程。压力表8装于防护罩9顶部用于监视阀内的工作压力。



 
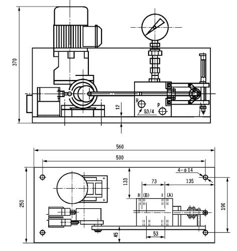
四、外形尺寸                      五、EM换向阀电控箱电路图及接线图
 
六、使用说明
该阀应安装在系统被控主管路的前端,且位于通风、干燥、便于检查及周围无运动机构干涉的部位,使用前必须先打开外罩向减速箱内加入50#机械油至规定液面。
 
苏ICP备08000188号Copyright© 2017启东市凯润液压润滑设备有限公司