干油润滑部分
单线式集中润滑系统介绍
双线式集中润滑系统介绍
电动润滑泵
 
手(脚)动润滑泵
 
加油泵
 
气动泵
 
双线分配器
 
单线分配器
 
压力操纵、控制、换向阀及其附件
 
 稀油润滑部分
稀油集中润滑系统设计介绍
稀油润滑装置及稀油站
 
高(低)压稀油站
 
挡轮液压站
 
稀油润滑元件
 
 管件部分
 
 油气润滑部分
油气润滑系统设计介绍
油气润滑系统的形式
 
油气润滑系统产品
 
 电气控制部分
 

产品介绍

 
GLCQ、GLLQ型列管式冷却器(0.63~1.6MPa)JB/T7356-94
一、概述
  列管式油冷却器适用于冶金、矿山、水泥、电力、轻工、食品、化工、造纸等工业部门的稀油润滑系统和液压系统中用来冷却系统中的润滑油、液压油。
  GLCQ、GLLQ型列管式冷却器是在JB/ZQ4004-86标准的基础上改进设计成JB/T7356-94标准的;产品适用于冶金、矿山、轻工、电力、化工等工业部门的稀油润滑装置,液压站和油压设备中,将热工作油冷却到要求的温度;冷却器的工作温度≤100℃,工作压力≤1.6MPa,一般工作压力≤1MPa;本产品体积小,重量轻、冷却效果好,便于维护检修;GLCQ 型的换热管采用紫铜翅片管,热交换系数>300kcal/m2·h·℃;GLLQ型采用裸(光)管,热交换系数>200kcal/m2·h·℃。
二、型号含义
三、技术参数
型号
公称
压力
MPa
公称冷却面积m2
热交换器性能
介质粘
度等级
进油
温度
进水
温度
油温
压力损失
MPa
油流量
与水流
量之比
热交换系数
K
kcal/m2.h.℃
油侧
水侧
GLCQ1
0.63
0.4
0.6
0.8
1
1.2
-
-
-
≤N100
55
±1
≤30
≥8
≤0.1
≤0.05
1:1
>300
GLCQ2
1.3
1.7
2.1
2.6
3
3.6
-
-
GLCQ3
1
4
5
6
7
8
9
10
11
GLCQ4
13
15
17
19
21
23
25
27
GLCQ5
1.6
30
34
37
41
44
47
50
54
GLCQ6
55
60
65
70
75
80
85
90
GLCQ3
0.63
4
5
6
7
-
-
-
-
≤N460
50
±1
1:1.5
>200
GLCQ4
12
16
20
24
28
-
-
-
GLCQ5
35
40
45
50
60
-
-
-
GLCQ6
1
80
100
120
-
-
-
-
-
GLCQ7
160
200
-
-
-
-
-
-
  热交换器性能是指油冷却器在表中规定的工况条件下测得的K值。
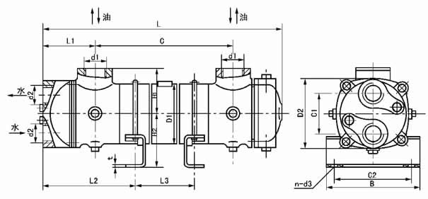
四、外形尺寸
GLCQ 型冷却器外形图
GLCQ 型冷却器外形尺寸
型号
L
C
L1
H1
H2
D1
D2
X1
C2
B
L2
L3
t
n-d3
d1
d2
重量
kg
GLCQ1-0.4/*
GLCQ1-0.6/*
GLCQ1-0.8/*
GLCQ1-1.0/*
GLCQ1-1.2/*
370
540
660
810
940
240
405
532
665
805
67
60
68
78
92
52
102
132
115
145
310
435
570
715
2
4-Φ11
G1
G3/4
8
10
12
13
15
GLCQ2-1.3/*
GLCQ2-1.7/*
GLCQ2-2.1/*
GLCQ2-2.6/*
GLCQ2-2.5/*
560
690
820
960
1110
1270
375
500
635
775
925
1085
98
85
93
120
137
78
145
175
172
225
350
485
630
780
935
2
4-Φ11
G1
G1
19
21
25
29
32
36
GLCQ3-4.0/*
GLCQ3-5.0/*
GLCQ3-6.0/*
GLCQ3-7.0/*
840
990
1140
1310
570
720
870
1040
152
125
158
168
238
110
170
210
245
380
530
680
850
10
4-Φ15
G11/2
G11/4
74
77
85
90
GLCQ3-8.0/*
GLCQ3-9.0/*
GLCQ3-10.0/*
GLCQ3-11.0/*
1470
1630
1800
1980
1200
1360
1530
1710
152
125
158
168
238
110
170
210
245
1010
1170
1340
1520
10
4-Φ15
G2
G11/2
96
105
110
118
GLCQ4-13/*
GLCQ4-15/*
1340
1500
985
1145
197
160
208
219
305
140
270
320
318
745
905
12
4-Φ19
G2B
G2
152
164
GLCQ4-17/*
GLCQ4-19/*
GLCQ4-21/*
GLCQ4-23/*
GLCQ4-25/*
GLCQ4-27/*
1660
1830
2010
2180
2360
2530
1305
1475
1655
1825
2005
2175
197
160
208
219
305
140
270
320
318
1065
1235
1415
1585
1765
1935
12
4-Φ19
G2
G2
175
188
200
213
225
GLCQ5-30/*
GLCQ5-34/*
GLCQ5-37/*
GLCQ5-41/*
GLCQ5-44/*
GLCQ5-47/*
GLCQ5-51/*
GLCQ5-54/*
1932
2152
2322
2542
2712
2872
3092
3262
1570
1790
1960
2180
2350
2510
2730
2900
202
200
234
273
355
180
280
320
327
1320
1540
1710
1930
2100
2260
2480
2650
12
4-Φ23
G2
G21/2
-
-
-
-
-
-
-
-
GLCQ6-55/*
GLCQ6-60/*
GLCQ6-65/*
GLCQ6-70/*
GLCQ6-75/*
GLCQ6-80/*
GLCQ6-85/*
GLCQ6-90/*
2272
2452
2632
2812
2992
3172
3352
3532
1860
2040
2220
2400
2580
2760
2940
3120
227
230
284
325
410
200
300
390
363
1590
1770
1950
2130
2310
2490
2670
2850
12
4-Φ23
G21/2
G3
-
-
-
-
-
-
-
-
  注:* 标注公称压力值
 
苏ICP备08000188号Copyright© 2017启东市凯润液压润滑设备有限公司